The University of Tampa FabLab
Tampa, Florida
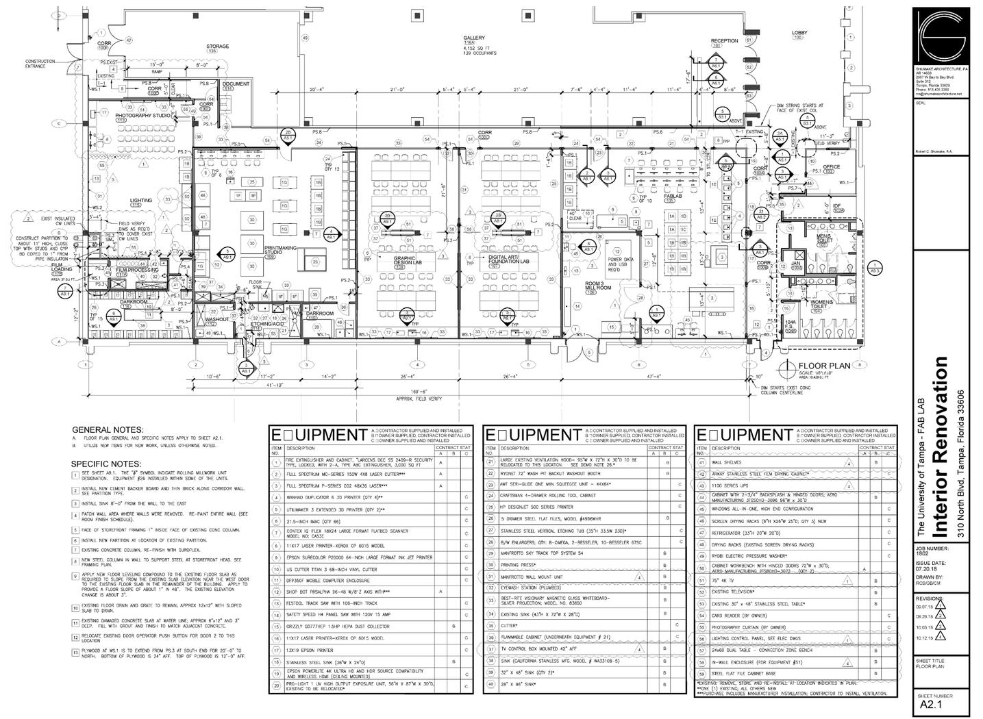
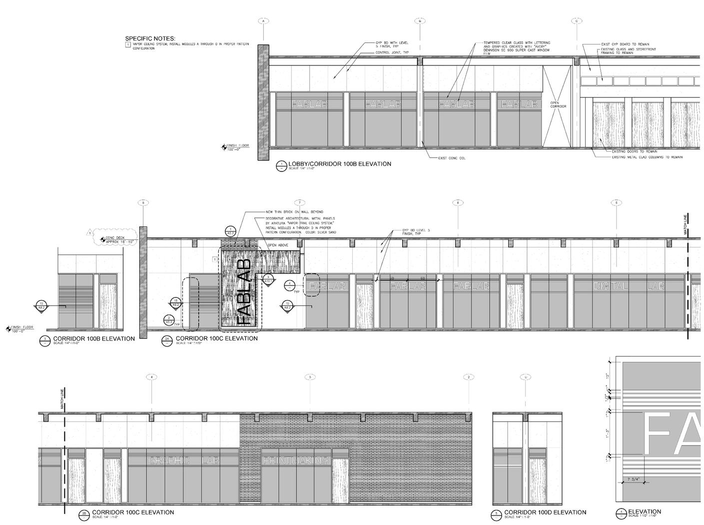
Fab Lab is home to the University of Tampa’s visual arts program. The studios are located along the south portion of the Bailey Arts Studios. It was designed as a collaborative studio for students to create virtually anything their creative minds envisioned. The 10,000 square-foot renovated area is comprised of a variety of art studios: 3D print lab, digital art, graphic design, printmaking, photography, and support spaces.
The design process required not only ingenuity while creating innovative designs to construct an environment suited for creativity, but also flexibility while working around unique equipment essential to the lab. Equipment included laser cutters, 3D printers, CNC routers, large format printers, and vinyl cutters.











